| | | | Zeit:
13.01.2026 07:47:20 |
Danke für die schnelle Antwort. Die Shelly liegt bei mir schon bereit und wartet nur noch auf den Einbau vom Elektriker meines Vertrauens. Meine Zirkulationspumpe läuft nicht ständig. Die verbaute Votex BWO 155SL ist selbstlernend und adaptiert die Abnahmegewohnheiten des WW, wobei ich Komfortstufe 1 nutze. Meine Wärmemengenerzeugung Stand 13.1. zu 7:00 war 1521 kWh bei einem Verbrauch von 547 kWh Strom. Der Temperaturverlauf der letzten Tage ist ähnlich deinem, gestern waren es auch -13 Grad. Welchen WMZ verwendendes du WarmerAlex? Danke & Gruß Consti62
|
| | Zeit:
13.01.2026 10:00:37 |
Zitat von WarmerAlex  Bei 100qm und nur HK ist sicher weniger Wasser im Umlauf als bei mir mit 160qm, das heißt, wenn bei mir die 27l knapp sind (Heizstab geht zum Abtauen oft an) würde vielleicht doch ein größere Speicher Sinn machen. Vielleicht 50l? Taktet die WP nicht zu häufig, wenn nur ein kleiner Pufferspeicher (50L) vorhanden ist, der nur wenig Wärme auf Vorrat speichern kann? – Und schwankt somit die VLT stark?
|
| | Zeit:
13.01.2026 11:15:39 |
Moin, wenn man die Inneneinheit mit eine Lankabel anschliesst, Modbus aktiviert und so etwas wir Home Assistant hat, dann kann man jede Menge Werte auslesen (oder berechnen). Viel viel mehr als die App einem bietet. Das ist mein erster Aufschlag, ein paar Sachen müssen noch angepasst werden. Takte und ähnliches lassen sich damit relativ leicht berechnen. |
| | Zeit:
13.01.2026 11:48:38 |
Mennoh, sieht das schon gut aus! Ist bei mir in der Planung. Wenn ich dabei nicht weiterkomme, werde ich Dich gern belästigen 😉. Zusätzlich noch Modbus-Stromzähler getrennt für WP und BUH. Für den Engelmann-U ist mir das Modbus-Modul aber zu teuer. Ich nehme mal an, Du hast die Register HIER gefunden...? Oder gibt's da nochwas umfassenderes? Oder sogar fertige yaml für die 4er Version?
|
| | Zeit:
13.01.2026 12:02:02 |
Sorry, hattest du hier bereits geschrieben (ich muss mich erst wieder an diese "spezielle" Foren-Software gewöhnen)
|
| | Zeit:
13.01.2026 12:09:24 |
Zitat von Gerd U  Mennoh, sieht das schon gut aus! Ist bei mir in der Planung. Wenn ich dabei nicht weiterkomme, werde ich Dich gern belästigen 😉. Zusätzlich noch Modbus-Stromzähler getrennt für WP und BUH. Für den Engelmann-U ist mir das Modbus-Modul aber zu teuer. Ich nehme mal an, Du hast die[...] Gerne melden. Ist auch noch "unschön", aber für Schönheit habe ich gerade wenig Zeit. Ja, die Register stammen aus der MMI Beschreibung, aber nicht alle funktionieren und es gibt wohl einige Feinheiten. Normalerweise setzt man wohl Register eher wie bei einem "Taster", also kurz das Signal hin schicken und dann wieder zurücksetzen, also als Trigger. Bei der Altherma muss es anliegen. Mir war wichtig die WW Aufbereitung bei Bedarf auch manuell anstoßen zu können. Ich habe auch zwei Engelman WMZ und ein Shelly in Betrieb. Die WMZ haben das Mbus Modul (30€) bekommen und hängen an einem Mbus Master USB Adapter (Aliexpress 35€). Bei HA gibt es das Addon Wmbusmeters (W-MBus to MQTT). Das einzig blöde ist, dass der Engelmann im Batterie Modus nur alle 2 Min einen neuen Wert ausspuckt. Aber auch hier gibts Möglichkeiten... Ich nutze den über Modbus gemeldeten Betriebsmodus um den Shelly Zähler auf zwei Verbraucher (WW und Heizung) aufzuteilen. Das und die WMZ Infos mache die Abrechnung mit der Mietwohnung sehr einfach.
|
| | Zeit:
13.01.2026 12:29:37 |
@mans Ich frage auch viele Register über Modbus TCP mit einer Altherma 4 ab.
Habe aber zwei Fragen dazu, weil ich bei dir diese Werte sehe.
Woher hast du die Wärmeleistung der WP? Die habe ich bei den Registern nicht gefunden.
Wie genau hast du den Durchfluss (aus dem Register 49?) angezeigt? Bei mir kommt da eine 4-stellige Zahl raus, hast du diese auch durch 100 geteilt, um die Liter/Minuten dann korrekt zu sehen? Bei mir steht in dem Register da aktuell z.B. eine 1140 und in der Registerbeschreibung steht nicht, dass man diese durch 100 teilen soll. Sind das dann 11,4 L/min? Ich hatte auch schonmal überlegt, ob das vielleicht die Liter/Stunde sein könnten.
|
| | Zeit:
13.01.2026 12:54:03 |
Zitat von anudanan  @mans Ich frage auch viele Register über Modbus TCP mit einer Altherma 4 ab.
Habe aber zwei Fragen dazu, weil ich bei dir diese Werte sehe.
Woher hast du die Wärmeleistung der WP? Die habe ich bei den Registern nicht gefunden.
Wie genau hast du den[...] Die Wärmeleistung berechne ich. Dadurch, dass man die VLT, RLT und Volumenstrom hat, kann man das selber berechnen, als sensor: Link, weil die Forensoftware hier sooo modern ist: https://pastebin.com/iWf2yyMd Da ich mir nicht so sicher bin welche VLT ich nehmen soll, habe ich mich versucht an den WMZ anzunähern. Es ist aber für mich einfach nur ein erster Blick, aber gar nicht so schlecht: Flow ziehe ich mit diesem Register, bei HA beginnen die Register mit 0 und nicht mit 1, daher immer 1 kleiner als im Daikin PDF: https://pastebin.com/tkrfLiFT Das ist meine modbus.yml: https://pastebin.com/3i3Biq57 Diese stammt nicht von mir! Ich habe diese aus einem niederländischen Forum: https://gathering.tweakers.net/forum/list_messages/2287804/4 |
| | Zeit:
13.01.2026 14:41:56 |
Zitat von Gizmo47  Zitat von WarmerAlex  [...] Taktet die WP nicht zu häufig, wenn nur ein kleiner Pufferspeicher (50L) vorhanden ist, der nur wenig Wärme auf Vorrat speichern kann? – Und schwankt somit die VLT stark? Bitte verabschiede dich von der weit verbreiteten Annahme, dass ein großer Pufferspeicher das Takten verhindert oder als Vorratsspeicher dienen muss. Seine Hauptaufgabe ist, das Abtauvolumen zu erhöhen, damit die WP nicht in Störung geht. Der Mythos vom „Taktungsverhinderer“ hält sich hartnäckig und wird leider immer wieder von bestimmten YouTube-Kanälen befeuert. Warum das so ist? Man kann nur vermuten – vielleicht liegt es an Bequemlichkeit oder mangelndem Interesse, eine Wärmepumpe wirklich passend auszulegen. Zum Vergleich: Meine Altherma 4 mit 8 kW läuft bis zu einer Außentemperatur von etwa 11–12 °C nahezu taktfrei. Die selbst berechnete Heizlast liegt bei ca. 8,5 kW zzgl. WW bei einer NAT von –9,5 °C, realistisch dürften es rund 8 kW sein. Selbst bei den kalten Temperaturen letzte Woche von bis zu –9,8 °C hat die Wärmepumpe ohne Heizstab unser Haus zuverlässig warm bekommen.
|
| | Zeit:
13.01.2026 15:11:46 |
Danke für die Antwort! - Und wie groß sollte der Pufferspeicher bei der 4kW-WP sein?
|
| | Zeit:
13.01.2026 15:31:41 |
Danke
habe einiges bei mir übernommen davon.
|
| | Zeit:
13.01.2026 16:26:08 |
Zitat von Mans  Moin, wenn man die Inneneinheit mit eine Lankabel anschliesst, Modbus aktiviert und so etwas wir Home Assistant hat, dann kann man jede Menge Werte auslesen (oder berechnen). Viel viel mehr als die App einem bietet. Das ist mein erster Aufschlag, ein paar Sachen müssen[...] Ich bin weiter an der Integration am arbeiten, passt bei dir die Außentemperatur?
|
| | Zeit:
13.01.2026 16:57:57 |
Du meinst die Außentemperatur über modbus Inputregister 44 (als0 dann 43 im HA)? Bei mir passt die meistens. Nur wenn die Abtauung läuft, ist die höher, weil es da ja wärmer wir. Und wenn die Sonnen auf den Außenfühler an der WP scheint, ist sie zu hoch. Ein externer Fühler an der Nordseitedes Hauses hat leider noch nicht richtig funktioniert. Wenn man den aktiviert, ist die angezeigte Außentemperatur immer noch die vom Fühler an der WP. Aber die Heizkurve scheint sich an dem externen Fühler zu orientieren, aber die macht dann komische Dinge und da ich nicht sehen kann, welche Temperatur der externe Fühler erkennt, habe ich diesen erstmal wieder abgeschaltet.
|
| | Zeit:
13.01.2026 21:56:06 |
Genau den meinte ich, war aber wohl nur kurzfristig ein Bug und so wurde der Sensor nicht aktualisiert. Eine erste Version ist online, da ist aber so einiges noch zu tun. https://github.com/joklee/ha_daikin_altherma4_modbus Erstmal auch nur Sensoren, keinen Steuerung.
|
| | Zeit:
13.01.2026 23:30:17 |
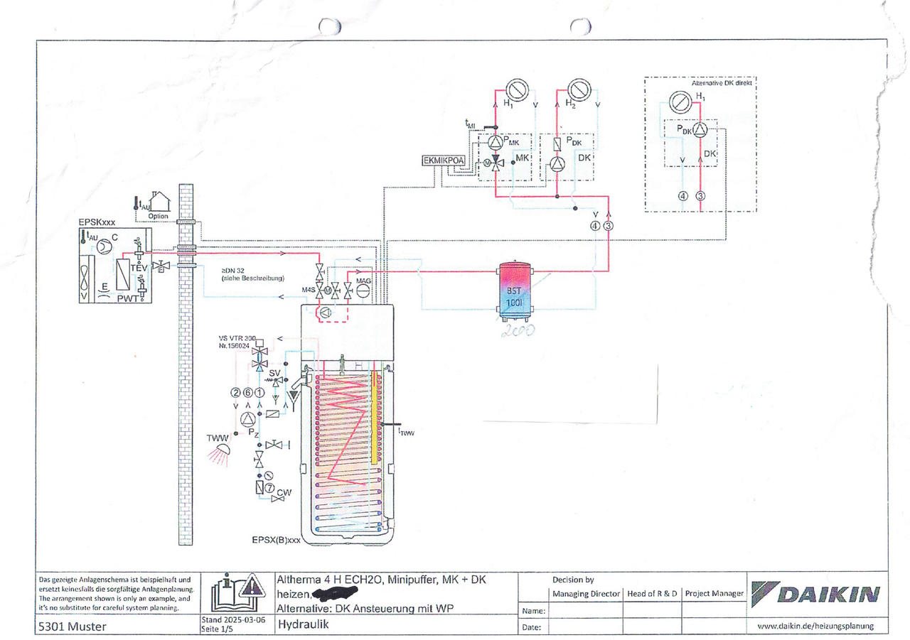
Zitat von Eddi Lang  Zitat von Consti62  [...] Moin und allseits ein "frohes Neues", ich habe mal ein Bild eingefügt, das vielleicht besser als viele Worte von uns erklärt, was im Parallelpuffer eigentlich strömungstechnisch abläuft und warum er deshalb die Arbeitszahlen absenkt. Damit sollte vielleicht klarer[...] Hallo Eddi, ich hatte heute Kontakt mit meinem Heizungsbauer und habe ihm erneut meine Problematik geschildert. So auch den Lösungsansatz mit dem Umbau des Pufferspeichers in den Reihenbetrieb im Rücklauf und die Begrünung nebst der Schemata. Er sieht dies als übertrieben bzw. nicht notwendig an, präsentierte mir das Planungsschema von Daikin(siehe Bild) nach dem er gebaut hat und fand das so ok. Weiterhin meinte er, ich soll nicht so aufgeregt sein, eine LWP braucht bei Minustemperaturen eben mehr Strom. Man müsse die Effizienz über das ganze Jahr sehen. Mein COP Wert liegt vom 1.1.2026-13.1.2026 bei 2,71 beim Heizen, das macht nicht wirklich Freude. Wie kann ich den Fachmann überzeugen, bzw. wie würdest Du weiter fortfahren ? Danke & Gruß Consti62 |
| | Zeit:
14.01.2026 00:14:21 |
Zitat von doublel711  Zitat von Gizmo47  [...] Bitte verabschiede dich von der weit verbreiteten Annahme, dass ein großer Pufferspeicher das Takten verhindert oder als Vorratsspeicher dienen muss. Seine Hauptaufgabe ist, das Abtauvolumen zu erhöhen, damit die WP nicht in Störung geht. Der Mythos vom „Taktungsverhinderer“ hält sich[...] Pufferspeicher verhindern das Takten nicht, sie können aber gerade in kleinen Heizungssystemen die Anzahl der Takte deutlich reduzieren. Anlagen mit FBH im Estrich benötigen keinen Speicher, der Estrich ist eine ausreichende Speichermasse um lange Taktzyklen sicherzustellen, auch wenn die Mindestleistung der WP über der aktuellen Heizlast liegt. Anders ist das bei kleinen Heizkörpersystemen deren Waservolumen vielleicht bei angenommen 100 Liter Kreislaufwasser liegt. Diese 100 l enthalten bei 6 K Hysterese (2K Überschreitung VLsoll vor Abschaltung, 4K Unterschreitung vor Zuschaltung) einen Wärmeimenge von 0,7 kWh. Bei einer aktuellen Heizlast von z.B. 1,4 kW ist diese nach 30 Minuten Taktpause verbraucht. Hat die Anlage zusätzlich einen RRP mit 200 Liter, reicht die Wärmemenge für 90 Minuten Taktpause. Das Wiederaufheizen des Systems bis zur Überschreitung der + 2K dauert ebenfalls länger. Bei z.B. 2,1 kW Mindestleistung der WP dauert es im ersten Fall 60 Minuten, im zweiten Fall 180 Minuten. Taktdauer ohne RRP = 90 Minuten, mit RRP 240 Minuten. Das ist ein theoretischer Unterschied zwischen 16 und 6 Takten pro Tag In der Realität wird diese ideale Betrachtung nicht vollständig erreicht, aber das thermodynamische Prinzip stimmt. Ein nicht ordnungsgemäß durchgeführter thermischer Abgleich und noch schlimmer, der Einbau einer kleinen thermischen Weiche können diese theoretische Taktdauer dramatisch reduzieren. Der Worst case ist dann erreicht, wenn die Volumenströme im den beiden Kreisläufen nicht synchron laufen. Man muss immer das Gesamtsystem betrachten, aber zwei Dinge sind gewiss: Eine schlecht geplante Hydraulik führt zu schlechten Ergebnissen! Thermische Weichen sind der größte Mist den man in ein WP-System einbauen kann!
|
| | Zeit:
14.01.2026 06:55:47 |
Zitat von Jkee  Genau den meinte ich, war aber wohl nur kurzfristig ein Bug und so wurde der Sensor nicht aktualisiert. Eine erste Version ist online, da ist aber so einiges noch zu tun. https://github.com/joklee/ha_daikin_altherma4_modbus Erstmal auch nur Sensoren, keinen Steuerung. Ich habe mal auf github deine Dateien angeschaut. Bei den Sensoren in der Datei const.py hast du öfters mal mit dem Faktor 0.001 multipliziert. müsste das nicht 0.01 sein ?
|
| | Zeit:
14.01.2026 10:56:11 |
Zitat von anudanan  Zitat von Jkee  [...] Ich habe mal auf github deine Dateien angeschaut. Bei den Sensoren in der Datei const.py hast du öfters mal mit dem Faktor 0.001 multipliziert. müsste das nicht 0.01 sein ? Danke fürs anschauen, sollte aber passen. In der Doku steht zwar scaling 100, passt aber nicht immer. So ganz 100% richtig arbeitet die modbus-api noch nicht. |
| | Zeit:
14.01.2026 12:28:09 |
Hallo doublel711 und Hildener, Danke für Eure Antworten!
|
| | Zeit:
14.01.2026 21:57:11 |
Zitat von Consti62  Zitat von Eddi Lang  [...] Hallo Eddi, ich hatte heute Kontakt mit meinem Heizungsbauer und habe ihm erneut meine Problematik geschildert. So auch den Lösungsansatz mit dem Umbau des Pufferspeichers in den Reihenbetrieb im Rücklauf und die Begrünung nebst der[...] Hast Du schon alle Rechnungen bezahlt? Hast Du deine Vergleichsmöglichkeiten hier mit anderen 4H - Besitzern angesprochen, die zeigen, dass Dir ungefähr eine ganze AZ fehlt? Dass beide Kreise dieselbe VLT und eine viel zu große Spreizung von 10 K haben? und dass sie also mit einem vernünftig ausgelegten Strangregulierventil im HK-Kreis direkt mit der bärenstarken Heizwasserpumpe, die fast 12 m Förderhöhe hat, betrieben werden könnten? Hast du ihn gebeten, die Pumpengruppen so einzustellen, dass nur 5mK Spreizung in den 2 Kreisen sind? Er soll ja seine Chance haben, die Anlage "besser" einzustellen. Gruß - Eddi PS: - läuft der Puffer denn nun jetzt als Reihenrücklaufpuffer oder noch als Parallelpuffer? - sei doch bitte so nett, wenn die WP wie derzeit ohne Abtauen läuft, 1x die VLT und die RLT in Beiden Pumpenkreisen abzulesen und auch die VLT und die RLT, die das Innengerät unter Informationen / Sensoren anzeigt.
|
| | Zeit:
15.01.2026 00:18:37 |
Zitat von Eddi Lang  Zitat von Consti62  [...] Hast Du schon alle Rechnungen bezahlt? Hast Du deine Vergleichsmöglichkeiten hier mit anderen 4H - Besitzern angesprochen, die zeigen, dass Dir ungefähr eine ganze AZ fehlt? Dass beide Kreise dieselbe VLT und eine viel zu große Spreizung von 10 K[...] Danke für die Antwort. Ja , ich habe die Rechnung bezahlt, Einbau war Juli 2025. Ich habe auch von den Erfahrungen anderer Besitzer von der 4 H berichtet. Der Pufferspeicher läuft noch im Parallelbetrieb und nicht in Reihe. Den Umbau sollte der Fachmann durchführen, er sieht dafür aber keine Notwendigkeit. Selber kann und will ich das nicht machen, auch mit dem Hintergrund der bestehenden Gewährleistung auf die Anlage. Meine Anlage hat keine 2 Kreise und 2 Pumpen, der Fachmann hat wohl gemäß der Daikin Vorlage gestricheltes Kästen oben rechts gebaut. Die Anlage hat folgenden Aufbau; VL vom AG in das IG, der VL des IG geht in den Pufferspeicher, der RL vom Puffer geht in das IG und vom IG geht der RL wieder zum AG. Der eigentliche HK (es ist nur einer), zieht seinen VL aus dem Pufferspeicher über eine Grundfoss Pumpe Alpha2 zu den Heizkörpern und von da geht der RL wieder in den Puffer. Um die einzelnen Temperaturen sichtbar zumachen, habe ich in die einzelnen Kreise einfache Digitalthermometer mit Fühler unter die Isolierung auf den Rohren befestigt. Die Bedeutung ist wie folgt: WP Innengerät: Kreis AG zum IG und zurück Puffer: IG zum Pufferspeicher und zurück Heizkreis: aus Puffer zu den Heizkörpern und zurück. Die ermittelten Werte sind vom 13.1.2026 , AT -3 Grad Ich hoffe du kannst damit was anfangen. Selbstverständlich soll der Fachmann eine Chance bekommen, das ist auch mein Ziel. Leider sieht er keinen Handlungsbedarf, es gibt keinen Lösungsvorschlag und ein Vororttermin ist auch noch nicht geplant. Ich habe heute nochmal eine freundliche Mail an ihn geschrieben, warten wir mal ab. Danke & Gruß Consti62
|
| | Zeit:
15.01.2026 05:33:56 |
Das ist ärgerlich. Dir reichen offenbar 34 Grad VLT um dein Haus zu erwärmen. Leider heizt die wp auf 40 Grad vlt, was unnötig ist diese 6 Grad Differenz na vlt sind das Problem. Diese sind quasi fast verschenkt und erklären wahrscheinlich die schlechtere Arbeitszahl. Ich würde versuchen, dass du dir ein Kostenvoranschlag geben lässt für den Umbau. Das muss ja möglich sein. Ich wünsche dir viel Erfolg. Ich kenne dir Problematik mit den Heizungsbauern. Die haben zum überwiegenden Teil nicht verstanden. Einer hat mir damals erklärt, dass der Parallel- Pufferspeicher unbedingt sein muss, weil beim Abtauen 2 Grad kaltes Wasser in den Vorlauf gehen würde und das dadurch die ganze Wohnung auskühlen wird. Er war sogar noch recht jung und Kältetechniker. Also eigentlich besser bzw passender ausgebildet. Man kann nur hoffen, dass diese Beiträge möglichst viele Leute vor dem Einbau lesen. Ich hatte das Glück, vorm Einbau auf dieses Forum gestoßen zu sein...
|
| | Zeit:
15.01.2026 05:36:42 |
Achso. Irgendwo fragte jemand nach dem Kiesbett. Ich habe 10cm Kies. Die Altherma 4 taut wenn Schneetreiben ist trotzdem nur aller 2 bis 3h ab so dass nur wenig Schmelzwaser entsteht und keine große Drainage nötig ist. In der Nachbarschaft steht eine altherma 3. Da ist die Eispfütze etwas größer. Aber dort ist gar kein Kies sondern Gehwegplatten.
|
| | Zeit:
15.01.2026 16:13:14 |
Zitat von WarmerAlex  Das ist ärgerlich. Dir reichen offenbar 34 Grad VLT um dein Haus zu erwärmen. Leider heizt die wp auf 40 Grad vlt, was unnötig ist diese 6 Grad Differenz na vlt sind das Problem. Diese sind quasi fast verschenkt und erklären wahrscheinlich die schlechtere Arbeitszahl. Ich würde versuchen,[...] Genau, das mit den 6°C Verlust im VLT ist der eine Grund. Der zweite ist die Rücklaufanhebung um nochmal fast 2 K druch mitgerissenen Vorlauf. Das sind 8K in Summe! Hier wird uns plastisch vorgeführt, was meine Grafik zum Parallelpuffer von neulich zeigte. Im Kompromissvorschlag mit dem HB würde ich den Parallelpuffer in einen Reihenrücklaufpuffer umwandeln und ggf. einen Überströmer einbauen, der bei zuviel Druck aufmacht und VL in den RL noch vor dem Reihenpuffer läßt. Die zu bauende Brücke heißt ja: „auch Daikin hat neue Erkenntnisse und empfiehlt nun dieses Schema“ - so verliert keiner „sein Gesicht“. Dann kann die Pumpengruppe für den Heizkreis auch raus und die Garantie bleibt wegen des [https://www.dropbox.com/scl/fi/844ndqrx0uqvzfsjp2gl2/5300-Altherma-4-H-ECH2O-Basisversion-heizen-k-hlen.pdf?rlkey=ycoh4e5cgtagtdh4cqsbfr2om&st=3ua1py2c&dl=0]Daikin-Hydraulikschemas[/url] erhalten. Gruß - Eddi
|
| | Zeit:
15.01.2026 17:25:05 |
Zitat von Consti62  Hallo Zusammen, danke für Eure Antworten. Da ich wie gesagt bei besserer Witterung den Pufferspeicher in Reihe in den Rücklauf umbauen lassen möchte, habe ich gleichzeitig vor einen Wärmemengenzähler installieren zu lassen. Im Auge dabei habe ich den[...] Consti, Ein paar Fragen aus dem zitierten Post sind noch unbeantwortet. Ich versuch‘ das mal… Zitat von Consti62  1 Wie kann ich von unterwegs zwischen den 3 Heizprogrammen, wenn sie programmiert sind auswählen? 2 Wie kann ich das Vorlauftemperaturverhalten WP/HK zum Außentemperaturverlauf tageweise sehen bzw. aufzeichnen? 1 Das kannst Du nur, wenn die Madoka, die Du hast, auch als Raumthermostat konfiguriert und 1.12 Steuerung auf Raum steht (hier der link für die Reglerbeschreibung. -> 1.12 ist auf S.77) 2 Dafür gibt es den Modbus bzw. Einen ESP-Altherma Dongle. Wurde hier inzuwischen behandelt.. Oder Sensoren von Shelly, die Du im App-Premium-Abo in Minutenauflösung immer für 1 h siehst. Zitat von Consti62  Meine weiteren Fragen unabhängig von der App sind: A) Wie kann ich das Regelverhalten der WP beeinflussen, wenn im Referenzraum eine zusätzliche Wärmequelle (Kamin) genutzt wird. Somit würde überheizt werden, z.Bsp. Solltemperatur 22,5 Grad, die Isttemperatur 26 Grad. Ich habe im WZ ein Madoka Raumthermostat verbaut, was aber meiner Erfahrung das nicht beeinflusst. Da das Madokamodul von Daikin nicht vorgeschrieben ist, ergibt sich für mich die Frage, woher weiß das System ob die am Innengerät (steht im Keller) eingestellte Wunschraumtemperatur erreicht ist. Erfolgt das nur durch Probieren und Testen und händischem Ändern der Heizkurve am Innengerät? B) Ab welcher Aussentemperatur ist es sinnvoll, dass der Zusatzheizer (bei mir auf -11 Grad eingestellt) unterstützt und ist eine Leistungsbegrenzung zu wählen. Wenn ja, welche Parametern sind dabei entscheidend? C) Wie erkenne ich ob eine Wärmepumpe zu unterdimensioniert ist ? A) Die Madoka hat einen Temperatursensor, mit dem sie die Raumtemp. misst und per P1/P2-Bus an den Regler übermittelt. Dazu muss die Temperatursteuerung im Regler (s.o.) aber auf Raum stehen. Dann kannst Du u.a. einstellen, ab welcher Unterschreitung der Solltemp. die WP einschalten soll und bei welcher Überschreitung sie die WP abschaltet. Ich selbst mit einer 3R hab eine und meine Verwandte (mit 4H 8kW) hat auch eine. Erst C) die klügste Antwort ist: indem man vorher eine Heizsaison lang einen Wärmemengenzähler installiert, täglich abliest und so die Normheizlast selbst ermittelt. Meist läuft das aber nicht so, denn klüger ist man beim Wechsel auf WP meist erst hinterher (ging mir auch so! U.a. deswegen bin ich hier aktiv)). Zweitens kann man es vor dem Kauf über diesen link näherungsweise ermitteln (die Exceldatei funktioniert nur mit Excel auf einem PC (Windows; ob auf einem MAC, weiß ich nicht). Oder vorher eine raumweise Heizlastberechnung anstellen lassen, die aber in 98% der Fälle erheblich zu hoch ausfällt. Ansonsten merkt man’s spätestens daran, dass die WP die gewünschte Raumtemperatur ohne Zusatzheizer nicht mehr erreicht. An wann das eintritt, bestimmt nicht nur die Außentemperatur, sondern die Kombination aus Außentemp. UND Luftfeuchte (= Zahl der Abtauungen) ist entscheidend. Nun B) nachdem ich Deine 26.000 kWh Gas gelesen habe und nicht weiß, ob Du ein Brennwertgerät hattest, würde ich den Zusatzheizer ab -7°C zulassen und auf 5 kW begrenzen. Beides musst gem. Antwort auf C ausprobieren. Der kW-Wert ist so zu wählen, dass die WP es mit Zusatzheizer immer „schafft“, aber der Wert eben nicht wesentlich höher ist. Sieh daher die 5 kW als Startwert an. Wenn Du sehen willst, ob der Zuheizer aktiv war, solltest Du Dir einen „internen“ Stromzähler z.B. v. Eltako oder einen Shelly Pro EM3 in den Schaltschrank oder das Innengerät einbauen lassen (je nachdem, wie verkabelt wurde), der Dir den Stromverbrauch des Zuheizers zählt. Beim Shelly gibts eine App und Du kannst auch sehen, wann und wie lange und wieviel Strom er dann verbraucht hat. Viele haben das hier (ich auch) und die meisten davon messen mit einem 2 Bauteil auch noch die Stromaufnahme des Außengeräts. Shellys haben den Vorteil der MQTT, WLAN, LAN und bluetooth-Kompatibilität. Gruß - Eddi
|