| | | | Zeit:
07.04.2026 10:30:32 |
Hallo zusammen, Für unseren EH40 Neubau mache ich mir aktuell Gedanken über die Lüftungsanlage. Ich liebäugle seit Jahren beim Stöbern hier im Forum mit den linearen Wickelfalzlösungen (aka Leitwolf), bin aber nun unentschlossen und hätte gerne einmal Gedankenanstöße. Grunddaten zum Haus- Einfamilienhaus für 4 Personen - 1,5 geschossiges, massiv gebautes Satteldachhaus mit 157m² - Spitzboden nicht ausgebaut - Vermutlich 5-6 Zuluftventile und 4 Abluftventile Ich sehe folgende zwei Möglichkeiten:1.) Linearer Aufbau mit Wickelfalzrohren in abgehangener DeckeEine Leitwolf-Planung mit linearem Aufbau von Wickelfalzrohren, bei der ich die Flure für die Verteiler recht stark (~22cm) abhängen muss und dann die Ventile jeweils direkt in den Wänden, die an die Flure angrenzen, platziere. Im OG würde der Flur bei ~2,32m Deckenhöhe landen, was schon recht knapp wird. Ich gehe davon aus, dass ich hier qualitativ eine wirklich gute und lautlose Lüftung bekommen würde. Preislich habe ich eine Kostenschätzung von 12k€ vorliegen (Planung, Material & Support; exkl. Kernbohrungen), bei der ich die Montage selber übernehmen müsste. - mindestens 12 Kernbohrungen durch Kalksandstein notwendig - Preis - in Fluren starkes Abhängen der Decke notwendig + Qualität & Lautstärke Gesamtsystem + wenig Abhängigkeit zu Rohbauunternehmen + professionelle Planung des Systems 2.) Sternaufbau mit Flexrohr in BetondeckeBei Vergabe des Gewerkes gibt es hier in der Umgebung letztlich nur einen Standard: Sternaufbau, bei dem hinter dem Lüftungsgerät große Verteiler kommen und die Flexrohre dann über die Betondecken in alle Räume geführt werden. Das ist auch das, was man über die zahlreichen Herstellertools selber planen kann. Je nach Planung komme ich hier auf Materialkosten von ~6,5k€, bei Selbstmontage. - Koordination im Rohbau nötig, damit Flexrohre in Betondecke kommen - ggfls. etwas stärkere Betondecke notwendig (unklar) + Preis + lediglich 2 Kernbohrungen für Frisch/ Fortluft nötig + kein Abhängen von Decken notwendig So stark ich ja von der Wickelfalzrohrlösung überzeugt bin, sind die Mehrkosten ja doch sehr groß, insbesondere, wenn ich auch noch die ganzen Kernbohrungen einbeziehe. Daher überlege ich tatsächlich, ob nicht eine großzügig dimensionierte Flexrohr-Lösung doch eine sinnvolle Variante sein könnte. Übersehe ich relevante Aspekte, die ich bei der Entscheidungsfindung einbeziehen sollte? Viele Grüße Malte
|
| | Zeit:
07.04.2026 13:20:31 |
Ein Plan des Hauses wäre hilfreich. Wir haben mit Spiro-/ teilw. Flachkanal installiert. Würde nie eine Schlauchlösung nehmen. Man muss auch nicht unbedingt die ganze Decke abhängen, wenn die Rohre entlang der Wand laufen.
|
| | Zeit:
07.04.2026 13:46:51 |
In kleinen Fluren ist eine geringfügig niedrigere Deckenhöhe nicht kritisch. Du kannst mit in den Trockenbau integrierten LED Paneln (z.B. auch Skylights) einen gedrungenen Raumeindruck reduzieren. Muss man vorher aufpassen, wo die Leitwolf Verteilbox sitzt. Die Wahl hängt ein bisschen von weiteren Randbedingungen ab. Hast du dir Gedanken zur Entfeuchtung und Befeuchtung, Betonkernaktivierung, dezentralen oder zentralen Abluftfiltern, Anlagenstandort, Wartbarkeit usw. gemacht? Wie kritisch siehst du Kunststoffe im Wohnbau? Setzt ihr bei anderen Gewerken z.B. auf Kunststofffenster, Vinylfußböden und günstiges Spanplattenmobiliar, oder wird viel Echtholz, Naturstein und derlei verarbeitet? Schlauchlösung mit Mehrfachanbindung in 90er Schläuchen wäre beim Neubau meine Wahl. Muss aber wirklich großzügig dimensioniert sein. Die " Bauherrenpakete" nutzen ja nur 50/60/75 als Standardmaß. Die Verlegung der Schläuche spart Zeit beim Verlegen. Dazu ist man freier bei der Platzierung der Ventile. Quell- und Induktionslüftung sind gleichermaßen möglich. Bei der deckenabgehängten Wickelfalzvariante kommt meist nur Induktionslüftung in Frage. In Verbindung mit Betonkernaktivierung findet auch eine Temperierung der Zuluft statt. Wer kein Bock auf die kleinen Zipfeltüten-Abluftfilter im Ventil hat (mMn nur in der Küche verpflichtend nötig), der fährt mit Wickelfalz und einem zentralen Ablufttaschenfilter im Standardmaß vor dem Gerät besser. Wickelfalz kann später gut durchgebürstet werden. Nur bei den Flexrohr- Schalldämpfern sollte man sachte sein. Überlege gleich, ob du Umluftanschlüsse für ein Entfeuchtungsmodul vorsehen willst. Siehe auch hier. Spannend in Verbindung mit Kühlung über die Flächenheizung. Für eine starke Zuluftkühlung unter Taupunkt ist bei der Wickelfalzvariante eine diffusionsdichte Isolierung der Rohre erforderlich. Für alle einbetonierten Rohrstrecken entfällt das Prozedere, senkt aber die Wirksamkeit der Luftkühlung. Kernbohrungen im Neubau lassen sich in der Rohbauphase vermeiden. Einfach ein paar XPS Quader zuschneiden und statt der KS Steine nach Plan einmauern lassen. Kann man später rausprockeln und den verbleibenden Spalt ausschäumen oder mit Dämmwolle ausstopfen. Oder den Schaum gleich passend mit eine Bohrkrone "ausstechen". Da reicht dann auch das billigste handgeführte Gerät mit billigster Bohrkrone. BTW: gibt es keinen Keller, der gelüftet werden will?
|
| | Zeit:
07.04.2026 15:30:54 |
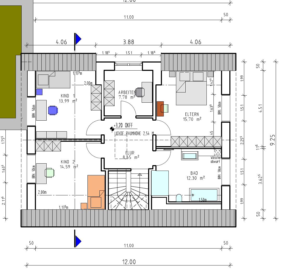
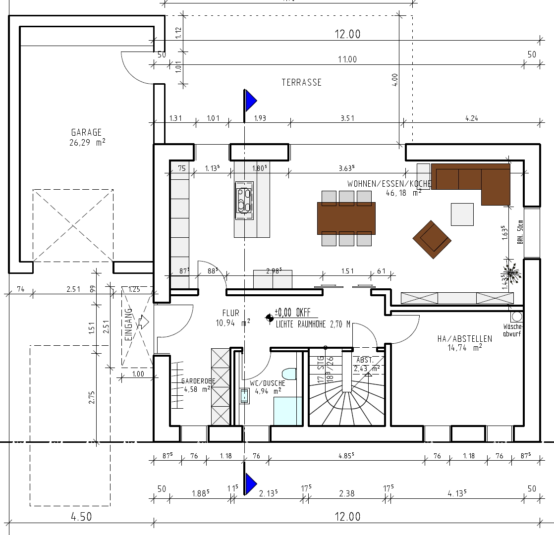
Anbei die gewünschten Grundrisse aus EG und OG: Grundriss ErdgeschossGrundriss DachgeschossEs gibt keinen Keller und der über den OG befindliche Spitzboden wird nicht ausgebaut. Meine aktuelle Idee wäre, dass das Lüftungsgerät im Technikraum im EG untergebracht wird. Bei der Wickelfalzlösung könnte der Steigschacht ins OG hinter der Tür vom OG Elternschlafzimmer gebaut werden. Von dort kommt man problemlos in den OG Flur, ohne weitere Zimmer großartig abhängen zu müssen. Im EG kann die Verteilung über Abhangdecke im Flur erfolgen, Auslässe im Allraum dann entsprechend über Ventile in der Wand zum Flur. Eine Alternative wäre die Lüftung auf den Spitzboden zu stellen (das Dach wird durchgängig gedämmt, aber nicht beheizt). Weiß aber nicht, ob das letztlich sinnvoller wäre. Wir werden keine BKA verbauen und die zusätzliche Komplexität mit der Entfechtung über KWL werden wir wohl nicht verfolgen. Danke für den Hinweis bzgl. Umgehung der Kernbohrungen für die Innenwände.
|
| | Zeit:
07.04.2026 15:32:43 |
Für eine starke Zuluftkühlung unter Taupunkt ist bei der Wickelfalzvariante eine diffusionsdichte Isolierung der Rohre erforderlich. Für alle einbetonierten Rohrstrecken entfällt das Prozedere, senkt aber die Wirksamkeit der Luftkühlung.Wenn die Rohre in einer Zwischendecke laufen, kann der Hohlraum auch ein wenig Zuluft bekommen (20m³/h). Dadurch spart man sich die Dämmung der Rohre. Mit Combi-Box Lösung können auch Klappen nachgerüstet werden, wodurch man mehr Möglichkeiten für eine raumflexible, gemischte Klimatisierungslösung erhält und das volle Potential des Lüftungsgerätes nutzen kann.
|
| | Zeit:
07.04.2026 18:28:25 |
Nach Sichtung der Grundrisse habe ich zwei Ideen: Konservativ mit Plaste oder planerisch anspruchsvoller mit Wickelfalz, aber ohne abgehängte Decken... Das Projekt ist offensichtlich budgetiert. Einen dedizierten Technikraum gibt es nicht. KWL Gerät unbedingt in den Spitzboden bauen. Du hast keinen Platz. Haustechnik mit Abstellraum und Waschgerät auf 15 m² ist echt knapp. Sehr wenige Wandflächen aufgrund der Fenster, da passen kaum Zählerschrank und HAK mit Bewegungsflächen in den Raum. PV Wechselrichter nebst Speicher, Heizungshydraulik, WW-Speicher und ähnliches Gelerch wollen auch noch rein. Vor Baubeginn und Vorbereitung der Mehrsparte genau planen, wo welches Gewerk sich verewigen darf, sonst steht die Waschmaschine nach Einzug im Wohnzimmer! Konservativ: Für eine optimierte Platzierung der Ventile mit Schläuchen in der Betondecke verrohren. Aber nichts kleiner als DN90 verlegen. Schlafzimmer und Wohnbereich brauchen mindestens 2x DN90 pro Ventil, sonst passen die Volumenströme nicht oder es gibt (für junge Menschen) nervige Geräuschentwicklung. Und jedes Zuluftrohr braucht auch ein Abluftrohr! 12x Zuluft und 4 x Abluft wird nicht funktionieren. Wohnzimmer eventuell Quelllüftung unter/neben der Couchgarnitur vorsehen. Abluft dann in der Nähe der Küchentür. Wickelfalz anders gedacht: In diesem Grundriss müssen die Flurdecken nicht abgehängt werden, wenn du darüber auf dem Spitzboden verrohrst. Die Ventile im OG/DG werden direkt durch die Geschossdecke zum Spitzboden gestochen. Die Ventile fürs EG können im DG Kniestock angefahren werden. Bei einer modernen Dachdämmung mit ~200 mm fallen kurze Stücke Wickelfalzrohr DN100 im Gefach nicht ins Gewicht. Ich hoffe die Grundidee ist verständlich. Generell: An Überströmöffnungen denken! Entweder Türen kürzen, Zargen oben einfräsen, spezielle Dichtungen verbauen oder gezielt schallgedämmte Überströmelemente einbauen.
|
| | Zeit:
07.04.2026 22:45:10 |
Nur zum verständniss, wie geht DN90 Rohr auf einer Betondecke? Hast du da eigene erfahrung damit? Wir haben die klassischen DN75 schläuche verlegt und in 25cm betondecken (elementdecke, macht ja heute kaum wer anders) hat das gerade so durch die Gitterträger gepasst. Mit DN90 definitiv keine chance. Und Eisen durchtrennen war vom Statiker untersagt (nein, nichtmal einzelne, gar nicht, null, nichts!). Ganz ohne gitterträger zu queren ist die verlegung der Schläuche definitiv nicht möglich. Im Prinzip ist es auch egal ob Dn90 oder DN75, es muss einfach genug Querschnitt für den gewünschten volumenstrom her. So liegen bei uns halt 3 75er schläuche ins Wohnzimmer und ins Schlafzimmer, im überschaubaren einfamilienhaus sind je 15x DN75 zuluft und abluftschläuche verbaut. Würde mich daher nicht zu sehr auf den rohrdurchmesser versteifen.
|
| | Zeit:
08.04.2026 00:02:12 |
Zitat von Marco M aus W  Nur zum verständniss, wie geht DN90 Rohr auf einer Betondecke? Das hängt vom Statiker ab. Manch ein Statiker schließt die Verlegung von KWL Verrohrung ja selbst bei geringeren Querschnitten aus. Sämtliche Rohrleitungen quer zur Spannrichtung sind erstmal ein Problem, wenn der Statiker nicht rechnen will oder kann. Aber die Gitterträger sind selten Teil der Druckbewehrung, oft reichen sie nicht mal als Abstandshalter. Da kommt noch eine Lage drauf. Das Gitter der Filigranelement ist zunächst für die Elementstabilität bei Transport und Betonage nötig, nicht für die finale Statik. Im Zweifelsfall die Querungsstellen begrenzen und im Auflagerbereich anordnen und/oder an diesen Stellen Doka unterbauen, damit während der Betonage nichts durchbiegt. Oder entlang der Spannrichtung bis in die nächste Wand fahren und dort einen Installationsschacht vorsehen.
|
| | Zeit:
08.04.2026 00:39:12 |
Kommt wohl stark auf den statiker an. Bei uns war wie gesagt die ansage, das am eisen nichts geflext wird, auch nicht an den gitterträgern. Da der statiker ansonsten sehr schmerzfrei war (BKA, KWL, hunderte meter Elektroleerrohr, teilweise abwasser, alles kein Problem wenns vorher abgesprochen war), haben wir dem natürlich folge geleistet. Das Risiko, stress bei der bewehrungsabnahme am Tag bevor der Beton kommt zu haben, ist es doch nicht wert. Ich schätze er war schlichtweg kein freund von überraschungen und hat gerne geschichten erzählt, wie er schon bauherren alles wieder hat ausbauen lassen obwohl der betonmischer schon auf dem Hof stand, weil sich nicht an Absprachen gehalten wurde. Naja, er haftet halt am ende ... Wie gesagt, geht auch alles mit 75er rohr, muss nur bei der planug berücksichtigt werden. Und selbst mit einer knapp dimensionierten 75er KWL ist man noch viel besser unterwegs als die meisten Bauträger mit ihren billigen, dezentralen pendellüfter oder gar fensterfalzlüfter! Aber das soll ja auch nicht der anspruch sein ...
|
| | Zeit:
08.04.2026 13:38:10 |
Zitat von hanssanitaer  Und jedes Zuluftrohr braucht auch ein Abluftrohr! 12x Zuluft und 4 x Abluft wird nicht funktionieren.[...] Das gilt aber nicht für die Spiro-Lösung. Wir haben z.B. im OG nur eine 150er Abluft im Bad, und auch im EG eine 150er in der Küche. Reicht völlig aus. MMn würde auch eine 150er Zuluft im Wohnzimmer gegenüber der Küche ausreichen.
|
| | Zeit:
08.04.2026 21:50:13 |
Zitat von hanssanitaer  KWL Gerät unbedingt in den Spitzboden bauen. Du hast keinen Platz. Haustechnik mit Abstellraum und Waschgerät auf 15 m² ist echt knapp. Ist das problemlos, wenn ich den Spitzboden zwar dämme aber nicht beheize? Es wird ja dennoch ein gewisser Temperaturunterschied zum OG/EG bestehen. Die von dir vorgeschlagene Variante zur Verteilung der Wickelfalzrohre über Dachgefach/Kniestock in Richtung EG kann ich mir noch nicht wirklich vorstellen. Hieße ja, dass ich an 4-6 Stellen (je nach Anzahl Ventile im EG) jeweils ein DN100 Wickelfalzrohr zwischen den Sparren vom Spitzboden am Dach hinunterführen müsste und dafür dort die Zwischensparrendämmung ausspare (keine Probleme mit Wärmebrücken?). Wir werden ~1,10m Kniestock im OG haben. Wie geht es dann vom "Ende des Daches" zur Geschossdecke zwischen EG und OG weiter? Es müsste dann extra eine Trockenbau Vorwand bzw. zumindest für die einzelnen Wickelfalzrohre per Trockenbau abgekastet werden, oder habe ich einen Denkfehler? Viele Grüße Malte
|
| | Zeit:
09.04.2026 13:31:37 |
Vergiss das, ich hatte den Kniestock nicht aufm Schirm. Fehlt eine Schnittzeichnung bei den Plänen.
Sah so aus, als wären zumindest im Bad die Drempel abgestellt.
|
| | Zeit:
09.04.2026 15:35:05 |
Ich würde den Wäscheabwurfschacht etwas größer planen, und daneben (oder integriert) gleich die Abluft nach oben ins Bad legen u. auch eine 150er Zuluft ins Wohnzimmer, die man mit Elektroklappe in der Nacht absperren kann, um die Lebensdauer der Filter und Ventilatoren zu verlängern, da nur Zuluft in die Schlafräume notwendig ist... Wenn man im EG die Abluft via 150er Rohr z.B. oberhalb der Küchenschränke macht (kann man gut verstecken), kann man sich auch den Schalldämpfer sparen (Bad u. WC sind unkritisch bzgl. Lautstärke).
|